Energieeffiziente 4-Zimmer-Neubauwohnung mit Balkon, Garage und Aufzug
Eckdaten
- Art Etagenwohnung
- Lage 30989 Gehrden
- Kaufpreis 498.000,00 €
- Wohnfläche ca. 112 m²
- Zimmer 4
- Baujahr 2026
- Etagenzahl 4
- Etage 2
- Alt-/Neubau Neubau
- Heizungsart Wärmepumpe
- Einbauküche nein
- Gäste-WC ja
- Anzahl Balkone 1
- Stellplatztyp Garage
- Garagenkaufpreis 20.000,00 €
- Garagenanzahl 1
- Vermietet nein
- Bezugstermin Ende 2026
- Bodenbelag Vinyl
- Ausstattung des Bades Dusche
- Zustand Erstbezug
- Immobilien-ID 132898495
Immobilienmaklerin (selbstständig)
Immobilie
Die hier beschriebene Wohnung befindet sich in einem Mehrfamilienhaus in Gehrden, dessen Bau im ersten Quartal 2026 beginnt.
Es handelt sich um eine 4-Zimmer-Wohnung mit großem Balkon und Garage.
Das Mehrfamilienhaus ist in einer Seitenstraße. Diese liegt sich inmitten einer ruhigen Wohnsiedlung, Sie finden alle Einrichtungen des täglichen Bedarfs in nächster Nähe.
Die Siedlung besteht überwiegend aus kleinen Mehrfamilienhäusern, Einfamilienhäusern und Geschäften.
Die Wohnung eignet sich sowohl als Kapitalanlage als auch für die Eigennutzung und ist ideal für bis zu vier Personen.
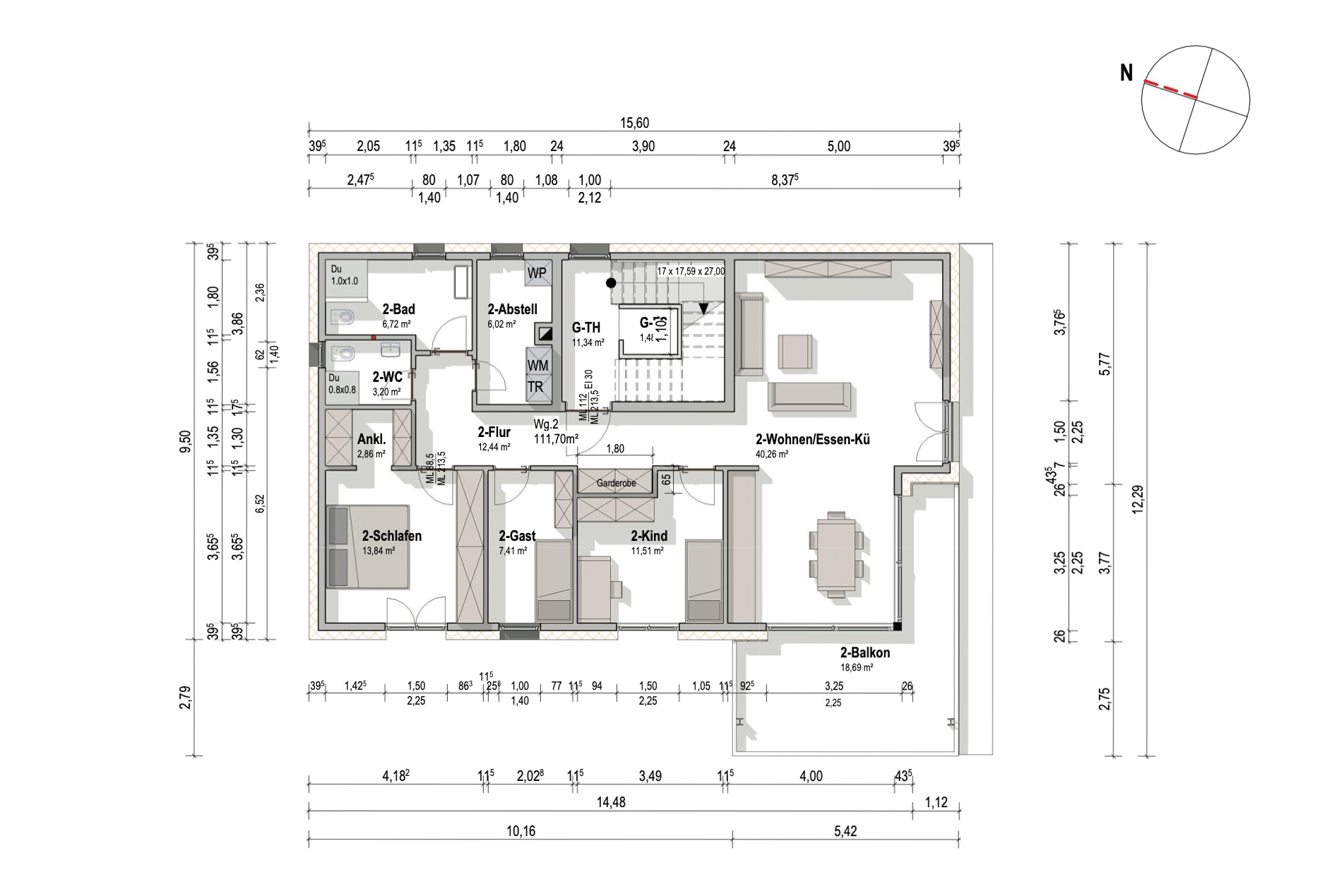
Die Wohnung
Der Eingangsbereich
Über die Eingangstür gelangt man in den Flur, welcher zentral gelegen ist und Zugang zu allen Räumen bietet.
Der Eingangsbereich ist geräumig und hat eine integrierte Nische für eine Garderobe und/ oder einen Schuhschrank, sodass der zentrale Hausflur immer aufgeräumt ist.
Zur linken Seite befinden sich ein Zimmer sowie das Wohnzimmer. Auf der rechten Seite finden Sie ein weiters Schlafzimmer, ein Gästezimmer, einen Abstellraum, einen Hauswirtschafts-raum und, ein Gäste-WC und das Badezimmer.
Der Wohn- und Essbereich
Das Wohnzimmer befindet sich auf der linken Seite der Wohnung. Es hat einen großzügigen Schnitt und bietet Platz für einen Ess- und einen Wohnbereich. Zudem hat man von hier Zugang zu dem einladenden Balkon, welcher um die Hausecke verläuft und so zu beinahe jeder Tageszeit den Wunsch nach Sonne oder Schatten erfüllen kann.
Das Kinderzimmer
Das zweite Zimmer ist nach hinten raus gelegen. Es bietet Platz für ein großes Bett und einen großen Schrank.
Das Gästezimmer
Das Gästezimmer ist etwas kleiner und eignet sich daher als Gästezimmer, Arbeitszimmer oder Ankleidezimmer.
Das Schlafzimmer
Das Schlafzimmer eignet sich ideal als Schlaf-, Arbeits-, oder Kinderzimmer. Es ist sowohl von innen als auch von außen betrachtet ruhig gelegen.
Das Badezimmer
Das Badezimmer ist hell gefliest und einladend groß. Es hat nicht nur eine barrierearme Dusche, sondern auch ein WC und Platz für einen großen Waschtisch.
Das Gäste-WC
Im Gäste-WC ist nicht nur ein zweites WC und ein Waschbecken, sondern auch eine weitere Dusche.
Der Hauswirtschafts- und Abstellraum
Im Hauswirtschaftsraum ist die Technik untergebracht. Hier haben Sie zudem noch ausreichend Platz für Ihre Waschmaschine und Ihren Trockner.
Das Haus ist derzeit in der Planung mit einem terminierten Fertigstellungstermin im Sommer 2026.
Bei der Planung wurde darauf geachtet, ein hocheffizientes, lichtdurchflutetes Gebäude zu errichten.
Die Wohnung wird schlüsselfertig übergeben. Das bedeutet, dass Bodenbeläge, Wände und die Sanitärobjekte sowie Armaturen bereits installiert und in Betrieb genommen sein werden.
Aktuell kann auf die Details in der Ausführung noch Einfluss genommen werden, sodass Sie Ihr Zuhause Ihren individuellen Wünschen anpassen können.
Haustechnik
Die Wohnung wird durch eine moderne Wärmepumpe beheizt, dessen Wärme über die Fußbodenheizung verteilt wird.
Es wird eine hocheffiziente Abluftwärmepumpe mit kombinierter Lüftungsanlage verbaut, welche nur Ihre Wohnung versorgt. So sind sie in Ihrer Wohnung unabhängig.
Neben der Wärmepumpe und der Lüftungsanlage ist die Wohnung mit weiterer hochwertiger Komforttechnik wie elektrischen Rollläden und LAN ausgestattet.
Die Stromversorgung wird durch über eine moderne Photovoltaikanlage sichergestellt.
Die Garage ist elektrisch bereits für eine Lademöglichkeit vorbereitet, sodass Sie die Wallbox Ihrer Wahl lediglich anschließen lassen müssen.
Lage
Die Wohnung befindet sich in Gehrden. Gehrden ist nicht nur wegen seiner Nähe zur Natur, sondern besonders wegen der guten Verkehrsanbindung und den Einrichtungen des täglichen Bedarfs beliebt.
Gehrden genießt einen sehr guten Ruf in der Region Hannover.
Die Verkehrsanbindung
Gehrden liegt im Westen von Hannover und ist über das Straßennetz sowie mit öffentlichen Verkehrsmitteln sehr gut angebunden.
Mit dem Auto ist man in wenigen Minuten an der B65 sowie der K35 und damit in alle Richtungen gut angebunden. Mit der Buslinie 500, welche nur wenige Gehminuten entfernt ist, erreicht man die Innenstadt von Hannover in 40 Minuten.
Weitere Buslinien fahren in der unmittelbaren Umgebung.
Die Mikrolage
Das Haus befindet sich am Anfang einer Straße eines ruhigen Wohngebietes.
Das Wohngebiet ist geprägt von kleinen Mehrfamilienhäusern und jegliche Art von Einrichtungen des täglichen Bedarfs.
Einrichtungen des täglichen Bedarfs und Freizeitangebote
Alle Einrichtungen des täglichen Bedarfs wie Supermärkte, Restaurants und Tankstelen sind in unmittelbarer Nähe der Wohnung zu finden.
In nächster Nähe zum Haus befinden sich weitere Restaurants und Einkaufsläden, sowie ein Schwimmbad und ein Sportverein. Außerdem gibt es eine Apotheke, ein Kiosk, eine Sparkasse und vieles Weitere.
Kitas, Kindergärten und Schulen sind in der nahen Umgebung natürlich auch zu finden.
Ausstattung
– Schlüsselfertige, moderne und energieeffiziente Wohnung (Effizienzhaus 40)
– Abluftwärmepumpe mit kombinierter Lüftungsanlage
– Photovoltaikanlage
– Fußbodenheizung in der gesamten Wohnung mit Einzelraumsteuerung
– Hochwertige Bodenbeläge und Badausstattung
– Ebenerdige Dusche
– Aluminium Rolläden
– Großer Balkon
– Eigene Garage
Sonstiges
Bitte haben Sie Verständnis dafür, dass wir nur vollständige Anfragen beantworten können. Bitte teilen Sie uns bei Ihrer Anfrage daher Ihren vollständigen Namen, Ihre Anschrift, eine E-Mail-Adresse sowie eine Telefonnummer mit.
Eine Besichtigung ist jederzeit nach vorheriger Terminvereinbarung möglich.
Alle Angaben basieren auf Aussage und Information des Verkäufers. Eine Haftung für die Richtigkeit dieser Angaben können wir daher nicht übernehmen.
Die Visualisierungen stammen von Frau Christine Haase.
Michel Runge Immobilien ist Ihr Partner rund um Immobilien.
Sie wollen verkaufen oder vermieten? Sie sind auf der Suche nach Ihrer Traumimmobilie? Sie möchten wissen, wie Ihr Haus oder Ihr Investment aktuell bewertet wird?
Wir stehen Ihnen mit Fachwissen und Motivation zur Seite. Gemeinsam entwickeln wir die optimale Strategie für Sie, sodass Sie entspannt Ihr Ziel erreichen.
Energieausweisangaben
- Enerigeausweistyp Bedarfsausweis
- Energiekennwert 11 KWh(m²*a)
- Energieeffizienzklasse A+
- Heizungsart Wärmepumpe
- Befeuerung / Energieträger Strom
Rechtliches
Provisionsfrei für Käufer
Herzlichen Dank für Ihre Anfrage.
Wir werden diese so schnell wie möglich bearbeiten.


